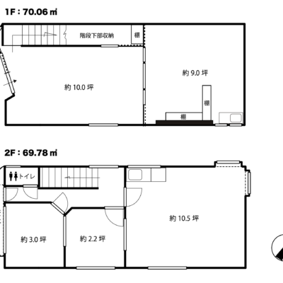
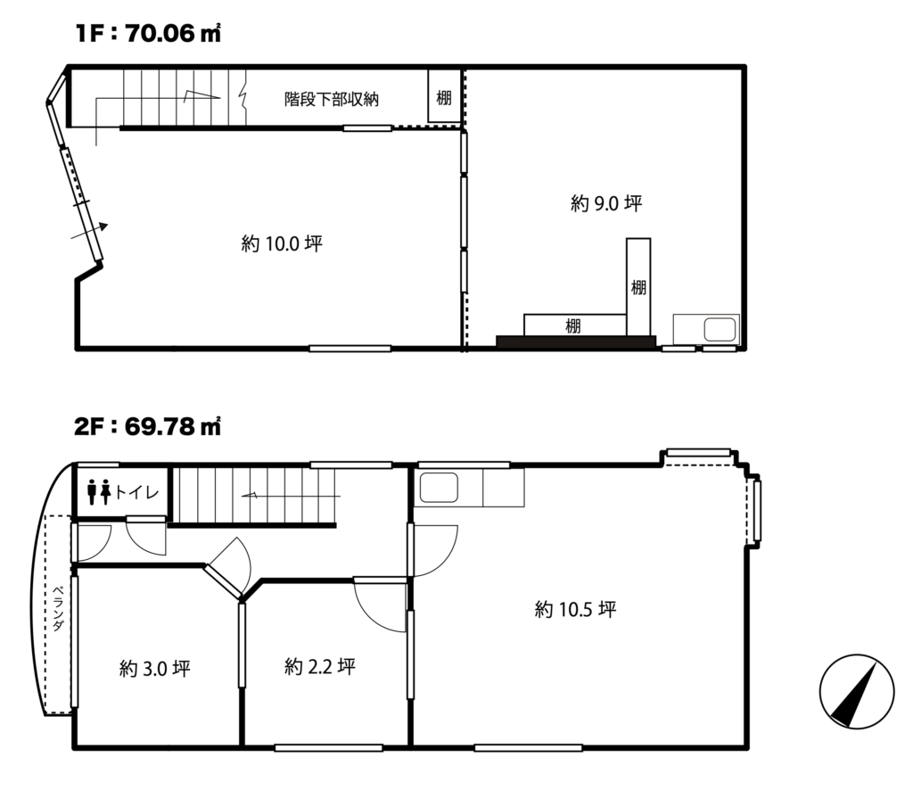
【西区寺尾東2】約26坪 飲食店可能new 飲食店出店に。大堀幹線沿い×駐車10台のロードサイド店舗です! 22万円 123.39m² 物件の詳細を見る 賃料 22万円 【賃貸】店舗・事務所 敷金3ヶ月 礼金1ヶ月 所在地 新潟県新潟市西区 寺尾東2-1-4 寺尾東2テナント 交通 JR越後線 寺尾駅 徒歩10分 バス 徒歩2分(坂井東三丁目) 築年月 平成3年 構造 木造 階建 地上 2階 部屋階数 1階 面積 123.39m² 駐車場 部屋番号 現況 空家 物件番号 RT013 設備・条件 ・トイレ、厨房あり ・2F 休憩室 36.85㎡(11.14坪)あり
【西区寺尾】42.3坪 事務所・店舗 ロードサイドにて視認性の良い、事務所利用に最適なテナントのご紹介です! 17万円 139.84m² 物件の詳細を見る 賃料 17万円 【賃貸】店舗・事務所 敷金2ヶ月 礼金1ヶ月 所在地 新潟県新潟市西区 寺尾6-37 交通 JR越後線 寺尾駅 徒歩10分 バス 徒歩1分(寺尾) 築年月 平成3年6月 構造 木造 階建 地上 2階 部屋階数 --階 面積 139.84m² 駐車場 空有 部屋番号 現況 空家 物件番号 RT011 設備・条件 流し台、トイレ(2F)、自動ドア ガス種別:プロパンガス
江南区曽川 約11坪 貸事務所 事務所向けテナント物件のご案内 4万円 36.62m² 物件の詳細を見る 賃料 4万円 【賃貸】店舗・事務所 敷金1ヶ月 所在地 新潟県新潟市江南区 曽川甲380-19 交通 バス 徒歩3分(嘉木) 築年月 平成9年4月 構造 木造 階建 地上 1階 部屋階数 1階 面積 36.62m² 駐車場 空有 部屋番号 現況 空家 物件番号 RT004 設備・条件 流し台、湯沸器付、トイレ専用、暗室有。ガス種別:プロパンガス
トーコー明石 8.7坪 倉庫事務所 荷物の多い方の収納スペースなど、ストレージに好適な物件です! 3.5万円 1R 28.77m² 物件の詳細を見る 賃料 3.5万円 【賃貸】店舗・事務所 間取1R 敷金1ヶ月 礼金1ヶ月 所在地 新潟県新潟市中央区 明石2丁目2-20 【トーコー明石】106号 倉庫事務所 交通 JR越後線 新潟駅 徒歩12分 バス(蒲原町) 築年月 昭和53年12月 構造 SRC 階建 地上 9階 部屋階数 1階 面積 28.77m² 駐車場 無 部屋番号 現況 空家 物件番号 RT003 設備・条件 その他 ※現況有姿での賃貸となります※賃料は税込表示です