西区寺尾 | 視認性◎駐車場付の42.3坪テナント

ロードサイドの視認性◎なテナントの登場です!!
事務所を移転したい…
店舗の新規出店を考えている…
駐車場が多めにほしい…
「でも家賃は抑えたいんだよなぁ…」
そんな方に、ぜひご紹介したいテナントがあります😄✨
新潟市西区寺尾エリア、県道16号線沿いに登場した 42.3坪のロードサイド物件。
前入居者は調剤薬局。事務所・店舗にも使いやすい造りが整っています。
—
👀【1】とにかく“視認性が良い”
ロードサイド立地にて、看板設置もイメージしやすく、
車通りも多いため 「お店・事務所が目に入りやすい」 のが大きな強みです。
「ここなら気づいてもらえる」そんな安心感があります😊
—
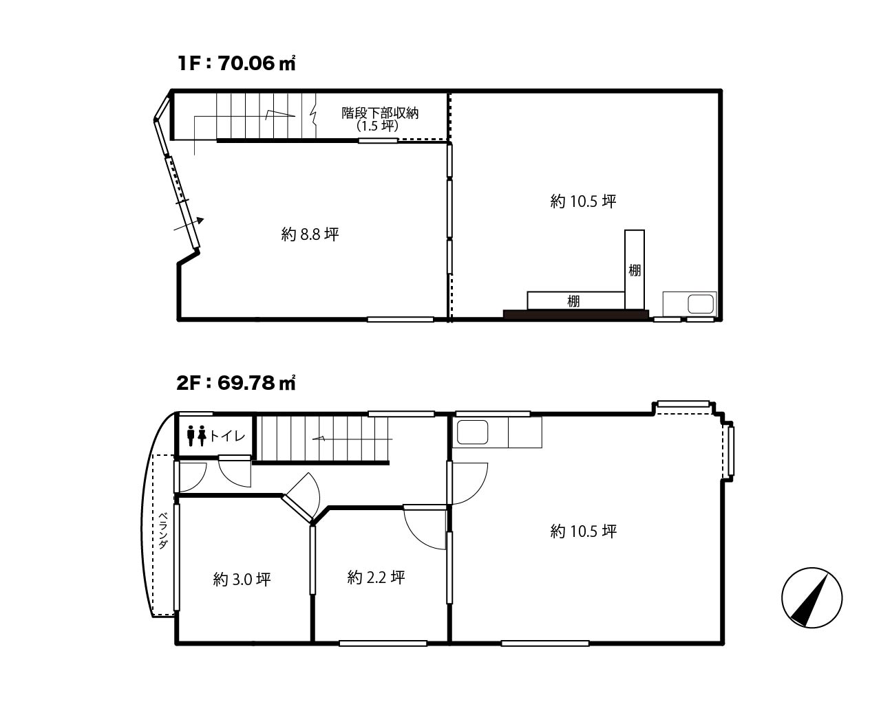
🗂【2】使いやすいツーフロア構成





1階は約10.5坪・約8.8坪の2部屋構成。
2階は約10.5坪に加え、小さめの2部屋(2.2坪/3.0坪)、+トイレ。
● 受付+待合
● 事務スペース
● 応接・相談室
● ストック・バックヤード
など、動線がとても作りやすいので、
業種を問わずレイアウトしやすい のが嬉しいポイントです💼✨
—
🚗【3】敷地内駐車場は“フリー利用”

来客やスタッフが多い業態にとって、駐車のストレスは避けたいところですね。
こちらは 敷地内を自由に利用可能‼️
スタッフさん数名でも無理なく使えます😊
—
🚉🚌【4】アクセス良好で来客しやすい立地
● JR寺尾駅 徒歩10分
● 新潟交通バス停「寺尾」 徒歩1分
● 亀貝インター/小新インター/新潟西インターまで車で約7分
車でも徒歩でも公共交通でも、「行きやすい」「来やすい」立地というのが魅力です✨
—
💡こんな業種に特におすすめです
✔ 介護・福祉関係
✔ 事務所・オフィス(IT、設計、など)
✔ 教室・塾・カルチャー
✔ リラクゼーションなどの軽店舗
✔ 在庫を少し持つような業態
間取りもシンプルで、レイアウトの自由度が高いのが魅力です😊✨
—
📸 物件写真・間取りはコチラ
📝 内覧可能です!まずはお気軽にどうぞ😊
「実際の広さを見たい」
「レイアウトを考えたい」
「初期費用を計算してほしい」
どんなことでもお気軽にご相談ください👍
📞 025-267-6870
📩 chintai@fukuju-kosan.co.jp
LINE公式アカウントからのお問い合わせも可能!
📲リンクより友だち追加して、ぜひご利用ください。
寺尾エリアで、
視認性・立地・広さ・駐車場のバランスが良い テナントは実はそこまで多くありません。
「移転・新規開業を考えていた!」という方は、どうぞお早めにお問い合わせください😊✨


