🏢✨【寺尾エリア×県道沿い】事務所・店舗にぴったりのテナントが登場!
新潟市西区寺尾エリアで、県道16号線(新潟亀田内野線)沿い🚗✨
視認性バツグンなテナントが募集開始です!
前入居者は調剤薬局💊
そのため、医療・介護・福祉系はもちろん、
事務所・店舗など幅広い事業に対応しやすい造りになっています。
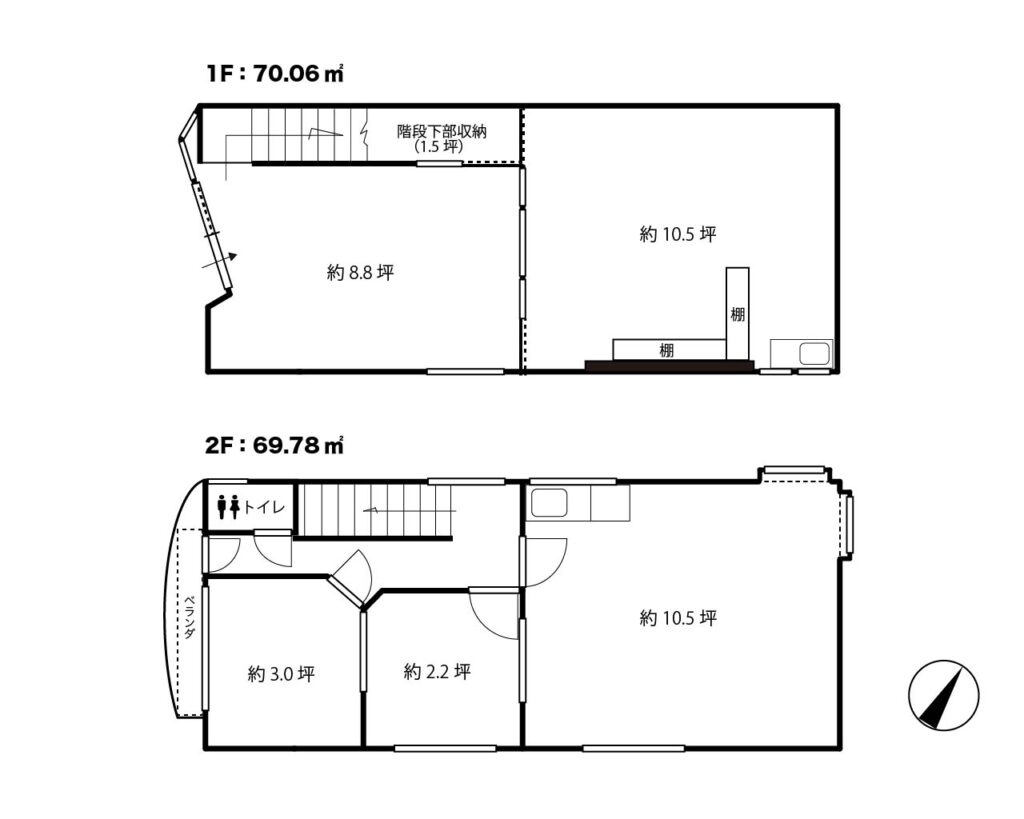
建物は1階・2階のツーフロア構成。
受付・事務スペース・応接室・バックヤードなど、
「使いやすい動線でレイアウトしたい」 という希望にも応えてくれるつくりです💼✨
駐車場は敷地内を自由に利用可能です🚗🚗🚗🚗 来客や従業員さんが多い業態でも安心です‼️
アクセスの良さも魅力で、
・小新インター/新潟西インターまで車で約7分🛣️
・JR寺尾駅まで徒歩10分🚶♂️
・バス停「寺尾」まで徒歩1分🚌
と、車でも公共交通でも訪問しやすい立地になっています。
「ロードサイドで視認性の高いテナントを探している」 という事業者様におすすめの物件です。
気になった方は、お気軽にお問い合わせください😊✨
内覧予約受付中!
ご興味のある方は、下記のフォーム、またはお電話・Eメールにてお気軽にお問い合わせください。
皆様のご連絡を心よりお待ちしております!
お問い合わせ先
以下のフォーム📝、または電話📞・Eメール✉️にてお気軽にご連絡ください。
・TEL:025-267-6870
・FAX:025-233-3753
・E-mail:chintai@fukuju-kosan.co.jp
LINE公式アカウントからのお問い合わせも可能です!リンクより友だち追加して、ぜひご利用ください。





















